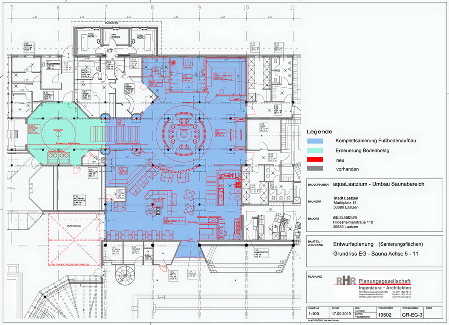
aquaLaatzium – Sauna-Teilumbau

Konzeptioneller Entwurf für den Komplettumbau des ostseitigen Saunabereichs mit Dampf- und Trockenbädern, Erlebnisduschen sowie zentraler Aufenthaltsfläche mit Restaurant-/Kaminbereich und Sprudelbecken.

Umbau und Neugestaltung einer Teilfläche bei laufendem Saunabetrieb.
Einbau einer Dampfbadkabine mit gefliesten Oberflächen, U-förmigen, zweireihigen Sitzbänken, mittiger Dampfauslass-Säule und Pyramiddecke, Ausbau eines neugestalteten Duschbereichs, Neugestaltung des Zugangsbereichs.

Leistungsbereiche:

  • Objektplanung für Gebäude nach HOAI Leistungsphasen 2 – 8

Bauherr: aquaLaatzium Freizeit GmbH
Bauort: Laatzen
Fläche Konzeptplanung: ca. 450 qm
Umbaufläche im 1.BA: ca. 50 qm