Zum Inhalt springen
Aktuelles
Architektur / Hochbau
Bauleitplanung
Datenschutzerklärung
GEG
Impressum
Kontakt
Referenzen
SiGeKo
Software
Start
Stellenangebote
Straßen- und Tiefbauplanung
Tragwerksplanung
Über uns
Albert-Schweitzer-Straße 1
30880 Laatzen
Tel.: (0511) 82012-0
Fax: (0511) 82012-15
info@rhr-planung.de
Architektur / Hochbau
Gewerbe-/ Bürobauten
Erweiterung einer Großbäckerei der Harry-Brot GmbH in Troisdorf
Neubau eines City-Geschäftshauses in Hannover
Neubau eines Siloturms der Harry-Brot GmbH in Soltau
Service Park Bispingen an der A7
Neubau einer Halle zur Abwasser-Aufbereitung in Hannover-Lahe
Konzeptplanung zur Erweiterung des Bahlsen-Werks Barsinghausen
Erweiterung einer Produktionshalle in Braunschweig
Neubau eines Büro-/Betriebsgebäudes mit Leitwarte in Ronnenberg
Standortanalyse/Konzeptplanung für enercity in Hannover
enercity Büro- und Betriebsgebäude in Hannover, Umbau/Brandschutzsanierung
Einbau Netzersatz-Leitstelle im UW Hannover-Linden
Umbau und Erweiterung eines Supermarktes in Wietzendorf
Umbau eines Bürogebäudes in Lehrte
Neubau Produktionshalle Weatherford in Langenhagen
Neubau CEC Weatherford in Langenhagen
Umbau/Erweiterung des Bahlsen-Werks in Barsinghausen
Neubau des enercity-Umspannwerkes List in Hannover
Sport-/ Bäder-/ Freizeitbauten
Sanierung einer Dreifeld-Sporthalle in Bergen (LK Celle)
aquaLaatzium – Sauna-Teilumbau
Planungsleistungen im Serengetipark Hodenhagen
Travebad Bad Oldesloe – Umbau Kleinkinderbereich
aquaLaatzium – Erneuerung Foyer-Lichtdach
Sanierung einer Dreifeld-Sporthalle in Laatzen
aquaLaatzium – Neubau Rutschenturm
Sanierung einer Sporthalle in Lehrte-Ahlten
Sanierung einer Sporthalle in Lehrte-Sievershausen
Erweiterung aquaLaatzium – Neubau Sportbad und Fitnesszentrum
Wohnbauten
Neubau einer Wohnanlage in Burgwedel
Umbau einer Gaststätte zu 2 Wohnungen in Hannover-Stöcken
Tragwerksplanung
Freizeitanlagen, Sportstätten, Schwimmbäder
aquaLaatzium – Neubau Rutschenturm
Sanierung einer Sporthalle in Lehrte-Ahlten
Sanierung einer Sporthalle in Lehrte-Sievershausen
Erweiterung aquaLaatzium – Neubau Sportbad und Fitnesszentrum
Gewerbe-Industrie-Hallenbau
Neubau eines Siloturms der Harry-Brot GmbH in Soltau
Neubau einer Halle zur Abwasser-Aufbereitung in Hannover-Lahe
Erweiterung einer Produktionshalle in Braunschweig
Umbau und Erweiterung eines Supermarktes in Wietzendorf
Neubau Produktionshalle Weatherford in Langenhagen
Neubau CEC Weatherford in Langenhagen
Neubau des enercity-Umspannwerkes List in Hannover
Wohn-, Büro- und Verwaltungsbauten
Neubau eines City-Geschäftshauses in Hannover
Neubau einer Wohnanlage in Burgwedel
Neubau eines Büro-/Betriebsgebäudes mit Leitwarte in Ronnenberg
Straßen- und Tiefbauplanung
Service Park Bispingen an der A7
Erweiterung aquaLaatzium – Neubau Sportbad und Fitnesszentrum
Umbau und Erweiterung eines Supermarktes in Wietzendorf
Neubau Produktionshalle Weatherford in Langenhagen
Neubau CEC Weatherford in Langenhagen
Bauleitplanung
Bebauungsplan
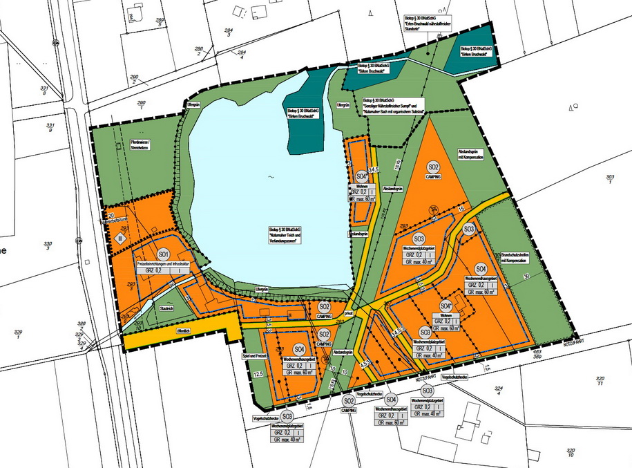
B-Plan Nr. 35 Serengeti-Park in Hodenhagen (Heidekreis)
B-Plan Nr. 141 in Walsrode, OT Düshorn
B-Plan Nr. 89 in Schneverdingen
B-Plan Nr. 08/09 in Wedemark, OT Gailhof
Flächennutzungsplan
Informelle Planung
Ergänzungssatzung in Isernhagen-Altwarmbüchen
Konzeptplanung zur Erweiterung des Bahlsen-Werks Barsinghausen