B-Plan Nr. 141 in Walsrode, OT Düshorn

Vorhabenbezogener Bebauungsplan Nr. 141 „Sondergebiet – Campingplatz Mühlenteich“ Ortschaft Düshorn der Stadt Walsrode mit örtlichen Bauvorschriften.

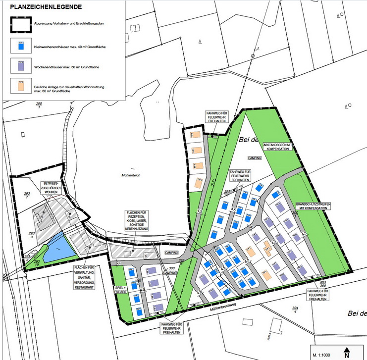
Vollständige Überplanung und Neustrukturierung des Campingplatzareals Mühlenteich in der Ortschaft Düshorn unter Berücksichtigung aktueller und künftiger Nutzungsvorstellungen.