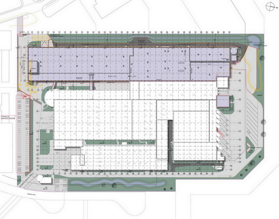
Erweiterung einer Großbäckerei der Harry-Brot GmbH in Troisdorf

Erweiterung vorhandener Produktionsanlagen um 3 Backlinien mit hintereinandergeschalteten Funktionsbereichen für optimierte Abläufe:

  • Rohstoffanlieferung mit Siloturm
  • Bäckerei
  • Verpackung
  • Lagerung mit Hochregallager
  • Expedition

2-geschossiger, seitlich angefügter Sozial- und Bürotrakt mit Anbindung des OG über 2 Brücken an den Bestand.
Gebäudeabmessungen ca. 267 x 45 m.
Massive Stb.-Fertigteilbauweise, Siloturm mit aufgesetzter Stahlkonstruktion.

Leistungsbereiche:

  • Objektplanung für Gebäude nach HOAI
    Leistungsphasen 3 – 4
    Entwurf, Bauantrag
  • Tragwerksplanung nach HOAI
    Leistungsphasen 1 – 3

Bauherr: Harry-Brot GmbH, Schenefeld
Bauort: Troisdorf (NRW)
BRI (Neubau): ca. 163.000 cbm