Planungsleistungen im Serengetipark Hodenhagen

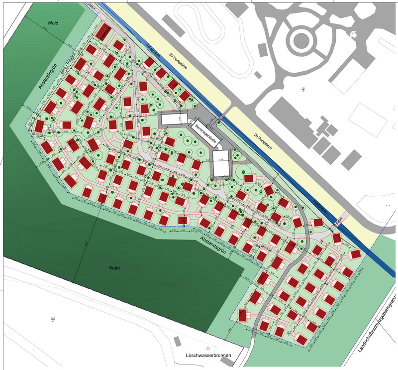
Tongasoa Safari-Lodges
Konzeptionierung und Genehmigungsplanung zur Errichtung von 100 Zeltlodges für Übernachtungs-gäste, eines zentralen Service-Gebäudes und eines Heizhauses auf baumbestandenem Gelände,
Planung der Erschließung mit Anbindung an das bestehende Wegenetz.
Baufläche: ca. 26.000 qm

Flugzeug-Restaurant
Vorbereitende Arbeiten zur dauerhaften Aufstellung und Umnutzung eines Flugzeuges vom Typ Airbus A310 auf dem Parkgelände.
Statische Ausarbeitung einer Stahlkonstruktion zur Aufständerung unter Berücksichtigung geeigneter Lastpunkte an Flugzeugrumpf und Tragflächen, Genehmigungsplanungen für die Flugzeug-Gründung und -Aufständerung sowie Ausbau und Umnutzung zum Flugzeug-Restaurant.
Planung der Gastraumausstattung unter Verwendung vorhandener Kabinenelemente sowie der erforderlichen Infrastruktur – Küchengebäude, Treppenanlagen, Personen- und Speisenaufzug – für den Restaurantbetrieb.
Abmessungen Flugzeug:
Spannweite ca. 44,0 m
Rumpflänge ca. 46,60 m
Rumpfdurchmesser ca. 5,65 m
Einstiegshöhe 4,75 – 5,0 m

Hatari Tower
Genehmigungsplanung für die dauerhafte Aufstellung und Nutzung eines mobilen Lauf-und Fahrgeschäftes als bauliche Anlage gem. NBauO unter besonderer Berücksichtigung von Brandschutzanforderungen, statische Berechnung der Fundamente für die frostfreie Gründung.
Abmessungen: Höhe ca. 22,50 m, 9 Ebenen
(Turmspitzen ca. 30,80 m)

Chaos Pendel
Genehmigungsplanung für die dauerhafte Aufstellung und Nutzung eines mobilen Fahrgeschäftes als bauliche Anlage unter Beachtung notwendiger Grenzabstände für einen Rotationskörper mit asymmetrischer Drehbewegung.
Abmessungen: Höhe Ausleger max. 40,15 m

Auftraggeber: Serengeti Park Hodenhagen GmbH